Espace propriétaire
fr
Se connecter
Se connecter

Votre recherche

Sous-compromis
Vence (06140)

3 pièces - 58 m²

Vence Appartement 3 pièce(s) dernier étage 58m² env. Parking Cave

195 000 €
Ref : V200000081
A propos de ce bien

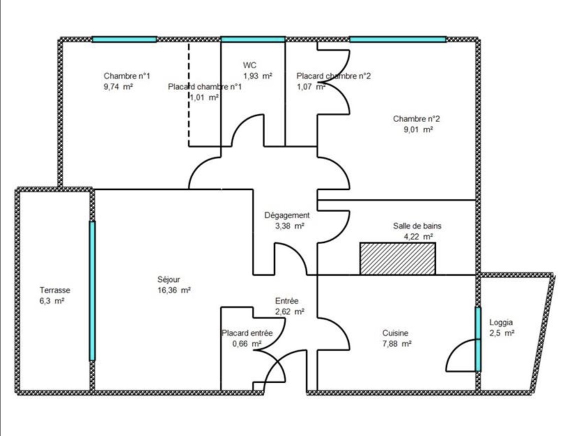
Appartement très lumineux à vendre à Vence au 4ème et dernier étage, 3 pièces 58m² environ comprenant entrée, séjour ouvrant sur terrasse bénéficiant d'une superbe vue, cuisine équipée avec loggia, 2 chambres, salle de bain, WC indépendant. Parking privatif, cave.

Rafraichissement à prévoir.

Annonce proposée par un agent commercial


Les informations sur les risques auxquels ce bien est exposé sont disponibles sur le site Géorisques
Descriptif de ce bien
Général
Code postal 06140
Surface loi Carrez (m²) 57,88 m²
Nombre de chambre(s) 2
Nombre de pièces 3
Etage 4
Ascenseur NON
Vue Dégagée
Détails
Nb de salle de bains 1
Cuisine Séparée
Type de cuisine Equipée
Mode de chauffage Fioul
Type de chauffage Convecteur
Format de chauffage Collectif
Loggia OUI
Terrasse OUI
Cave OUI
Nombre de parking 1
Exposition Sud
Année de construction 1963
Composition
Etage 4
salon/sejour 16.36 m²

cuisine 7.88 m²

chambre 9.74 m²

chambre 9 m²

salle de bain 4.22 m²

Financier
Prix de vente 195 000 €
Les honoraires d'agence seront intégralement à la charge du vendeur  
Charges 150 €
Taxe foncière annuelle 745 €
Energie
DPE GES
Copropriété
Copropriété OUI
nombre de lots 55
Quote Part annuelle des charges 1 359 €
plan de sauvegarde NON
statut du syndic pas de procédure en cours
Contacter pour ce bien
L'agent
Lenquette Céline Mandataire Montauroux (83440)
Téléphone 0635337529

* Champ obligatoire

Les informations recueillies sur ce formulaire sont enregistrées dans un fichier informatisé par La Boite Immo agissant comme Sous-traitant du traitement pour la gestion de la clientèle/prospects de l'Agence / du Réseau qui reste Responsable du Traitement de vos Données personnelles. La base légale du traitement repose sur l'intérêt légitime de l'Agence / du Réseau. Elles sont conservées jusqu'à demande de suppression et sont destinées à l'Agence / au Réseau. Conformément à la loi « informatique et libertés », vous disposez des droits d’accès, de rectification, d’effacement, d’opposition, de limitation et de portabilité de vos données. Vous pouvez retirer votre consentement à tout moment en contactant directement l’Agence / Le Réseau. Consultez le site https://cnil.fr/fr pour plus d’informations sur vos droits. Si vous estimez, après avoir contacté l'Agence / le Réseau, que vos droits « Informatique et Libertés » ne sont pas respectés, vous pouvez adresser une réclamation à la CNIL. Nous vous informons de l’existence de la liste d'opposition au démarchage téléphonique « Bloctel », sur laquelle vous pouvez vous inscrire ici : https://www.bloctel.gouv.fr Dans le cadre de la protection des Données personnelles, nous vous invitons à ne pas inscrire de Données sensibles dans le champ de saisie libre.
Ce site est protégé par reCAPTCHA, les Politiques de Confidentialité et les Conditions d'Utilisation de Google s'appliquent.

Découvrir nos outils